Nowa inwestycja przy ul. Dąbrowa w Bydgoszczy

Kontakt

OPIS INWESTYCJI

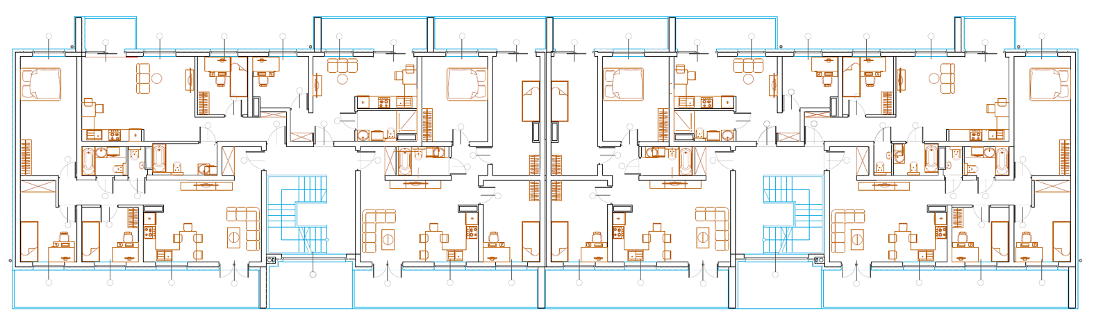
Ostoja Dąbrowa to 2 budynki 2 piętrowe wielorodzinne na działce o powierzchni 2986 m2 , w każdym 2 klatkowym budynku po 16 mieszkań wraz windą. Mieszkania 3 i 4 pokojowe o powierzchni od 54,45 do 69,33 m2. Data rozpoczęcia maj 2018 zakończenie czerwiec 2019 ( I etap) Harmonogram prac  w prospekcie poniżej Odległość do centrum Bydgoszczy 2,9 km oraz 2 km BPP ( Bydgoski Park Przemysłowy) Dogodna lokalizacja 1 km od łącznika z Trasą Akademicką łączącą północ Bydgoszczy z południem tj. ul. Glinki.

pobierz prospekt PDF

LOKALIZACJA

Bydgoszcz, ul. Dąbrowa, działki ewidencyjne nr 6/18, 6/25 obręb 186. W promieniu 500 m od inwestycji znajduje się : - przedszkole, - szkoła podstawowa - sklep Biedronka i planowany Lidl - stanowisko Wojewódzkiej Stacji Pogotowia Ratunkowego - lasy miejskie W odległości 2 km szpital miejski Co sobotę otwarte dni na budowie ( po wcześniejszym ustaleniu terminu). Stolarka okienna Veka z roletami zewnętrznymi na parterze w standardzie. Tarasy i balkony z niemieckiej deski kompozytowej

BUDYNEK B2

Sprzedaż mieszkań bezpośrednio u dewelopera. Pośrednikom dziękujemy.

Rozpoczęcie budowy budynku BII planowane jest na luty 2021r.

BUDYNEK B2 PARTER

pobierz rzut parteru B2 PDF

Powierzchnia łączna parteru to 261.11 m2

Mieszkanie M1 – 73,29 m2 i 10 m2 tarasu (sprzedane) pobierz rzut mieszkania PDF
Mieszkanie M2 – 57,18 m2 i 10 m2 tarasu (sprzedane) pobierz rzut mieszkania PDF
Mieszkanie M3 – 57,07 m2 i 10 m2 tarasu (sprzedane) pobierz rzut mieszkania PDF
Mieszkanie M4 – 73,56 m2 i 10 m2 tarasu pobierz rzut mieszkania PDF

 


BUDYNEK B2 I PIĘTRO

pobierz rzut I piętra B2 PDF

Powierzchnia łączna I piętra to 410 m2

Mieszkanie M5 – 69,33 m2 i balkon  22,64 m2 pobierz rzut mieszkania PDF
Mieszkanie M6 – 40,76 m2 i balkon  4 m2 (rezerwacja) pobierz rzut mieszkania PDF
Mieszkanie M7 – 28,44 m2 i balkon  8,27 m2 (rezerwacja) pobierz rzut mieszkania PDF
Mieszkanie M7a – 67,92 m2 i balkon I 11,08 m2 i balkon II 17,72 m2 (rezerwacja) pobierz rzut mieszkania PDF
Mieszkanie M8 – 67,95 m2 i balkon I 22 m2 i balkon II 4 m2 pobierz rzut mieszkania PDF
Mieszkanie M9 – 28,44 m2 i balkon  8,27 m2 (rezerwacja) pobierz rzut mieszkania PDF
Mieszkanie M10 – 40,76 m2 i balkon  4 m2 (rezerwacja) pobierz rzut mieszkania PDF
Mieszkanie M10a – 69,44 m2 i balkon 23,63 m2 pobierz rzut mieszkania PDF

 


BUDYNEK B2 II PIĘTRO

pobierz rzut II piętra B2 PDF

Powierzchnia łączna II piętra to …………………………

Mieszkanie M11 – 80,33 m2 i balkon I 22,64 m2 i balkon II 4 m2 pobierz rzut mieszkania PDF
Mieszkanie M12 – 57,92 m2 i balkon 11 m2 pobierz rzut mieszkania PDF
Mieszkanie M13 – 67,95 m2 i balkon I 22,64 m2 i balkon II 8,27 m2 (sprzedane) pobierz rzut mieszkania PDF
Mieszkanie M14 – 67,95 m2 i balkon I 22,36 m2 i balkon II 11,36 m2 pobierz rzut mieszkania PDF
Mieszkanie M15 – 28,44 m2 i balkon  8,27 m2 (rezerwacja) pobierz rzut mieszkania PDF
Mieszkanie M15a – 40,76 m2 i balkon  4 m2 (rezerwacja) pobierz rzut mieszkania PDF
Mieszkanie M16 – 69,44 m2 i balkon  23,63 m2 pobierz rzut mieszkania PDF

 


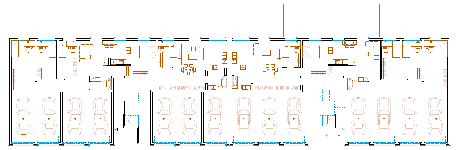
Samodzielny garaż z elektryczną bramą segmentową – możliwość dokupienia jako opcja.

Zapraszam do odwiedzenia placu budowy po wcześniejszym kontakcie telefonicznym   793 86 21 75

BUDYNEK B1

GALERIA


Budynek B1 parter

pobierz rzut parteru B1 PDF

Powierzchnia łączna parteru to 252,61 m2

Mieszkanie M1 – 70,96 m2 i 16 m2 tarasu (sprzedane) pobierz rzut mieszkania PDF
Mieszkanie M2 – 54,90 m2 i 16 m2 tarasu (sprzedane) pobierz rzut mieszkania PDF
Mieszkanie M3 – 53,91 m2 i 16 m2 tarasu (sprzedane) pobierz rzut mieszkania PDF
Mieszkanie M4 – 70,53 m2 i 16 m2 tarasu (sprzedane) pobierz rzut mieszkania PDF

 


Budynek B1 I piętro

pobierz rzut I piętra B1 PDF

Powierzchnia łączna I piętra to 407,51 m2

Mieszkanie M5 – 68,79 m2 i 22,74 m2 balkon (zarezerwowane) pobierz rzut mieszkania PDF
Mieszkanie M6 – 68,18 m2 i balkon I 4,01 m2 i balkon II 8,21 m2 (sprzedane) pobierz rzut mieszkania PDF
Mieszkanie M 7 – 70,07 m2 i balkon I 8,61 m2 i balkon II 17,72 m2 (sprzedane) pobierz rzut mieszkania PDF
Mieszkanie M8 – 69,85 m2 i balkon I 8.61 m2 i balkon II 17,48 m2 (sprzedane) pobierz rzut mieszkania PDF
Mieszkanie M9 68,48 m2 i balkon I 4,00 m2 i balkon II 7,96 m2 (sprzedane) pobierz rzut mieszkania PDF
Mieszkanie M10 68,79 m2 i balkon 23,63 m2 (zarezerwowane) pobierz rzut mieszkania PDF

Budynek B1 II piętro

pobierz rzut II piętra B1 PDF

Powierzchnia łączna II piętra to 407,51 m2

Mieszkanie M11 – 69,28 m2 i 22,64 m2 balkon (sprzedane) pobierz rzut mieszkania PDF
Mieszkanie M12 – 68,59 m2 i 8,28 m2 balkon (sprzedane) pobierz rzut mieszkania PDF
Mieszkanie M13 – 70,12 m2 i balkon I 11,04 m2 i balkon II 17,47 m2 (sprzedane) pobierz rzut mieszkania PDF
Mieszkanie M14 – 69,80 m2 i balkon I 9.14 m2 i balkon II 17,48 m2 (sprzedane) pobierz rzut mieszkania PDF
Mieszkanie M15 – 68,11 m2 i balkon I 4,00 m2 i balkon II 7,95 m2 (sprzedane) pobierz rzut mieszkania PDF
Mieszkanie M16 – 68,58 m2 i balkon 23,63 m2  (sprzedane) pobierz rzut mieszkania PDF

Budynek nr1.

  • mieszkanie 11/19 – 70,2 m2 cena brutto za 1m2 9600 zł

Budynek nr2.

  • mieszkanie 4/19B cena brutto 335 000 zł
  • mieszkanie 5/19B 40,5 m2 sprzedane
  • mieszkanie 6/19B 70,50 m2 zarezerwowane
  • mieszkanie 7/19B 71,04 m2 zarezerwowane
  • mieszkanie 8/19B 71,04 m2 cena brutto 580 000 zł
  • mieszkanie 2/19C 74,98 m2 cena brutto za 1m2 9400 zł
  • mieszkanie 6/19C 70,60 m2 cena brutto za 1m2 9400 zł
  • mieszkanie 9/19C 40,50 m2 cena brutto 435 000 zł
  • mieszkanie 10/19C 70,6 m2 cena brutto za 1m2 9400 zł